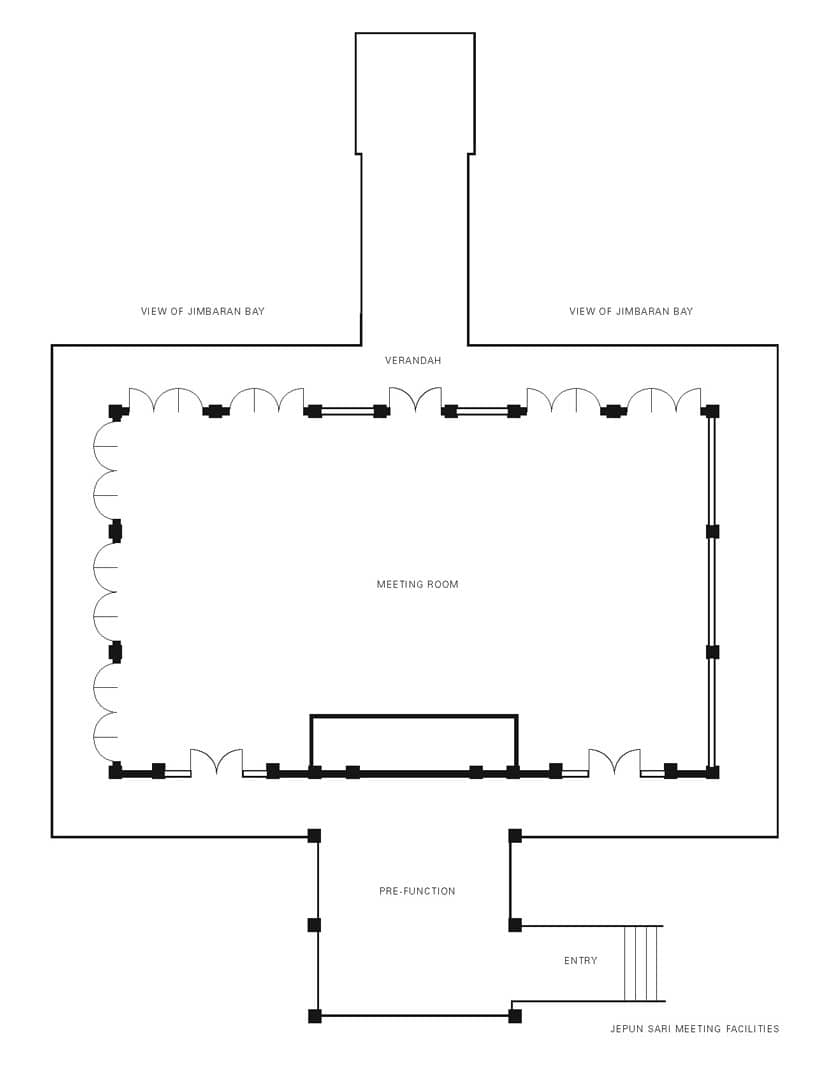
Floor-to-ceiling glass walls elevate meetings by filling Jepun Sari with an abundance of natural light and delivering spectacular views across Jimbaran Bay. A wraparound terrace is the perfect spot for mid-day breaks.
Max Occupancy
140
Size
165 m2 (1,776 sq. ft.)
Height
4 m (13 ft.)
Occupancy by Configuration
- Classroom
- 72 Guests
- Theatre
- 140 Guests
- Reception
- 100 Guests
- Banquet rounds
- 80 Guests
- Conference/Boardroom
- 34 Guests
- Hollow square
- 46 Guests
- U-shape
- 38 Guests
More About This Venue
HIGHLIGHTS
- Pre-function room available
- Soaring thatched roof
TECHNOLOGY
- Wired and wireless high-speed internet
- State-of-the-art AV equipment
- Equipped with professional soundboard

