Las puertas corredizas tipo pocket se fusionan perfectamente las salas de estar interiores y exteriores, acercándolo un poco más a la naturaleza. Aquí se disfruta más de las vistas de la puesta de sol junto a la piscina.
Galería
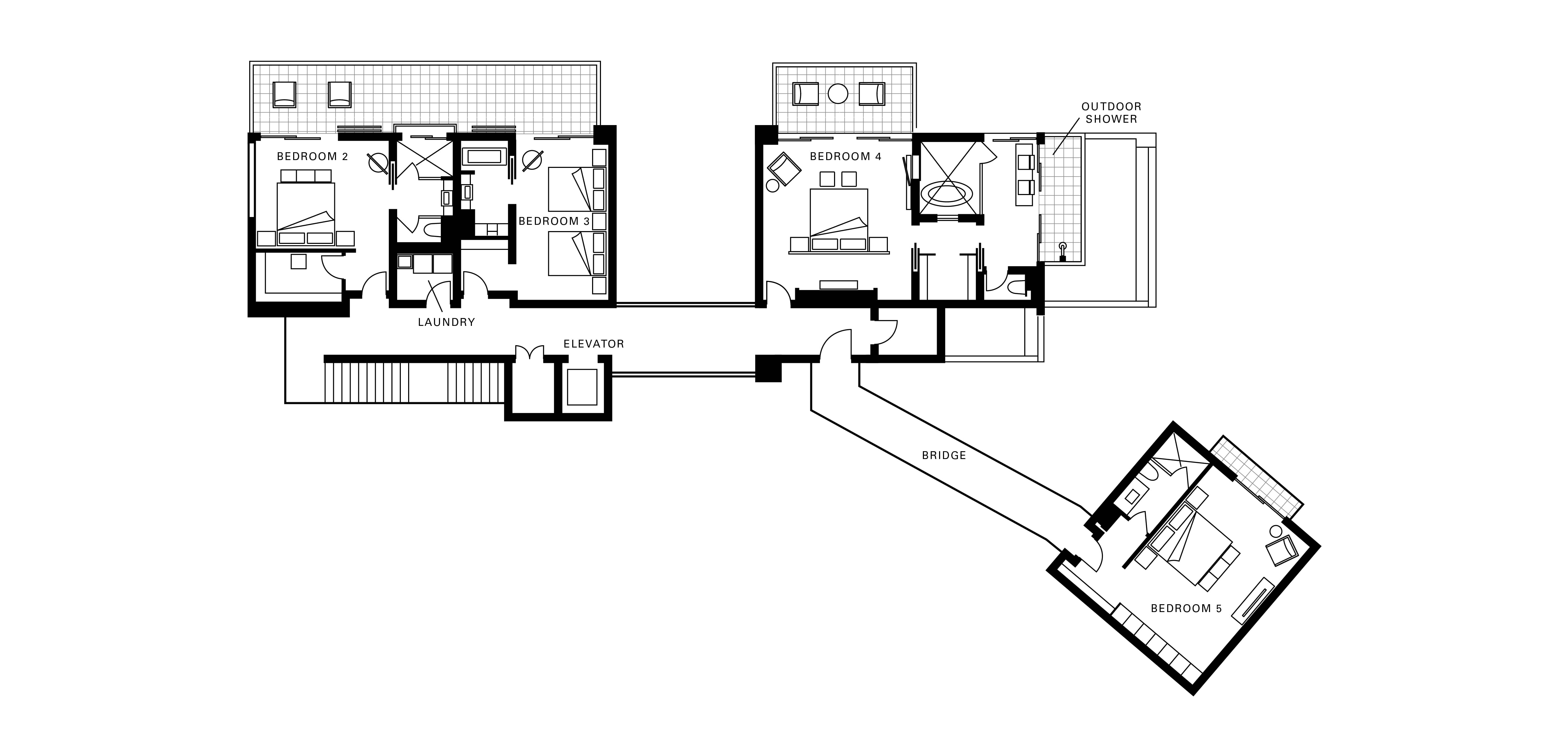
Explore su retiro
Desde planos de planta hasta mapas, descubre todo lo que necesitas saber sobre esta extraordinaria casa.
Ahora está viendo
Detalles
Camas
Cuatro camas King y dos camas dobles
Capacidad
Diez adultos y cuatro niños, u ocho adultos y seis niños
Tamaño
- 807 m² (8.687 ft²)
- Bahía Prieta
Baño
Un baño completo de mármol por dormitorio, además de un tocador para visitas cerca de la Sala de estar. Los dormitorios principales cuentan con bañeras y duchas al aire libre.
Vistas
Bahía
Características exclusivas
- Espacio interior-exterior muy amplio
- Remates lujosos incluyen pisos de mármol, ducha al aire libre, bañera y electrodomésticos Gageneau
- Asistente personal
- Traslado de ida y vuelta al aeropuerto
- Crédito de 500 USD para abastecimiento de la despensa (según la lista de víveres)
- Sesión privada de meditación o de yoga (una hora, una vez por estadía)
- Bebida y refrigerio de la tarde entregados a la habitación en días alternos
Comodidades
- Caja de seguridad en la habitación
- Plancha y mesa de planchar
- Batas y pantuflas para niños
- Iluminación inteligente Lutron
- Ventiladores de techo y sistema de enfriamiento ecológico
- Teléfonos de varias líneas con correo de voz
- Café y té
- Batas de lujo y pantuflas
- Exclusivos productos de baño de Natura Bisse
- Almohadas y edredón de plumas o hipoalergénicos, de su elección
- Las conocidas camas Four Seasons
- Secadora de cabello
- Lujosas bañeras profundas
- Vestidores
- Toma de corriente junto a la cabecera para cargar teléfonos móviles
- Wi-Fi prémium de cortesía
- Acceso gratuito a la app PressReader
- Servicio de limpieza dos veces al día
- Servicio a la habitación las 24 horas
- Equipo para niños, incluyendo cunas, sillas altas, y artículos de tocador
- Acceso exclusivo al Prieta Beach Club (para huéspedes que se hospeden en Casa del Mar, Casa las Olas, Casa La Luna o Casa del Coco)
- Televisor inteligente de ultra alta definición y funcionalidad Chromecast
- Películas en la habitación
- Televisión y canal de noticias por cable
- Altavoces Bluetooth Bose SoundLink
- Asistente personal
- Chef privado
- Servicio de cuidado infantil
- Entrenamiento físico personal, incluyendo clases de yoga, meditación y spinning
- Servicio de bar privado
















